Background:

The manual climate control system in my crown victoria was acceptable for short around town trips. But on longer highway trips, it was an annoyance to frequently have to adjust the middle temperature control and the rightmost blower motor speed knobs to maintain a suitable cabin temperature. Frequently adjustment of the climate knobs was also sometimes a source of argument with other passengers in the car who would make comments to the effect of "stop fiddling with the knobs, just leave them alone" and then a short while later comment "it's too hot" and then a little while later "it's too cold".

A climate control system that accepted the input of the desired cabin temperature and then automatically adjusted the vent discharge temperatures and blower motor speed would be convient and would also effectively elimate a source of friction with the other passengers in the car. Crown Victoria's in the LX trim level were avaliable with a feature called "Electronic Automatic Temperature Control" or "E.A.T.C." for short that accomplishes what we're interested in. Unfortunetly, EATC was not avaliable in the base civilian p73 or the police cruiser p71 trim levels. But it can be added if one is ambitious enough and has sufficent funds to purchase the needed parts.

Theory of Operation:

From a vehicle operator perspective, the HVAC (Heating / Ventilation / Air Conditioning) system in the crown vic is simple. With the manual controls, turn the right most knob to select which vents you want the air to be discharged from. Turn the middle knob to adjust the temperature. And turn the left most knob to control the volume of air flowing from the vents.

With the eatc system, press the automatic button and key in the numerical temperature that you desire (from 65 to 85 degrees) and then the system will automatically choose which vents to discharge the air from, how much air to move from the vents, and the required vent discharge temperature in order to maintain the vehicle cabin at the desrired temperature. Since the system is fully automatic, there is no need to continually adjust the knobs to maintain the same cabin temperature like you would with the manual climate control system. The eatc system also has manual overides for all of it's features, so on a damp day you can manually tell the system to direct the air towards the windshield. Or during the summer, you could manually tell the system to direct cooled air at your feet under the dash. Similarly, the blower speed can be overidden by turning a knob. And the automatic control of the vent discharge temperature can be overidden and set to full hot or full cold by setting the desired temperature to either 60 or 90 degrees. In this mode, all data from the interior and exterior temperature sensors is ignored by the control circuitry.

The inner workings of the system are a little bit more complicated though. There are two aluminum devices located inside plastic housings under the hood and under the dashboard. The first device is called an evaporator and directing air through this device cools the air and transfers the heat removed to the air conditioning condensor located in front of the radiator. The other device we're interested in is called the heater core, directing air through this device heats the air by transferring heat from the engine coolant to the air. To move the air through the evaporator and heater core, there is a motor with fan blades on a wheel attached to it called a blower motor. To control the temperature which comes out of the vents inside the car, a moveable obstruction called a blend door is located inside the air tunnels underneath the dashboard. In crown vics, air flows through the evaporator first and then through the heater core. When air is desired to be cooled, the blend door closes so that air will not flow past the heater core. When air is desired to be heated the door opens, so that air has to pass through the heater core before exiting through the dashboard vents. In crown vics, air always flows through the a/c evaporator even when the hvac vent discharge temperature setting is set to the full warm position. Although if the a/c compressor is not engaged, the a/c evaporator will not affect the temperature of the air. And similarly, if the engine has been sitting unused during a cold winter night, directing air through the heater core will not heat the air as the engine coolant will be at the same temperature as the outside air.

The door which blends the warmed and cooled air together is electrically controlled to give precise control over how much air passes through the heater core and the resulant vent discharge temperature. The doors which controls which vent(s) air is discharged from are controlled by engine vacuum.




Beginning the Project:

The first big step of this project is determining what is different between a vehicle with "climate control" and one with manual hvac controls.
A shopping list with applicable part numbers and pricing information for this project is avaliable here.

So in an oversimplified series of steps, to install eatc one has to:
Below are pictures of the old manual head and it's eatc counterpart.










Below is the back of the two climate control heads. Take note that neither the electrical connectors nor vacuum ports are the same between the two units.

There appears to be a common misconception among the general public that adding eatc to a ford vehicle equipped with manual climate controls is "plug and play". Some backyard mechanics have even gone so far as to purchase an eatc control head, only to find that it won't plug into their vehicle's dash harness.



Checking out the out manual climate control system:

A system which automatically combines cooled air conditioned air and warm heated air in precise amounts is going to be of little use if either the heater or a/c system aren't working properly. Similarly, if vacuum controlled doors inside the heater box aren't working properly with the old manual a/c system, they probably won't work right with the new eatc system.

So before beginning this project, we'll need a baseline to figure out if additional parts need to be ordered:

Adding Sensors:

Interior Temperature Sensor:

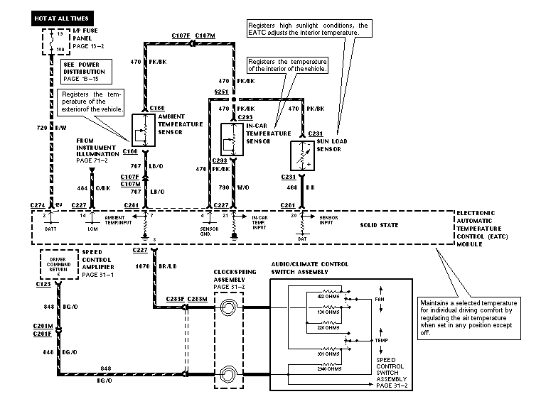
The interior temperature sensor is a resistive thermal device that converts temperature data into an electrical signal useable by the eatc control circuitry. More information on this sensor is avaliable by clicking here.









Exterior Air Temp Sensor:

Like the interior air temperature sensor, the exterior is a thermistor with a temperature dependant variable resistance. But unlike the interior air temperature sensor, no additional parts are required to prevent stangnant air from causing false readings as the sensor is in the air flow path of the radiator and condensor. More information on this sensor is avaliable by clicking here.



Sunload Sensor:

The sunload sensor is used by the eatc air conditioning system to determine when to recirculate the interior cabin air instead of pulling in air from the outside. Under normal circumstances, the sunload sensor has infinite resistance. But under bright light conditions, the sensor allows voltage to flow like a diode would.

In the pictures below, the sunload sensor is the one on the left. The sensor on the right is for the automatic light sensitive headlight (autolamp) system.







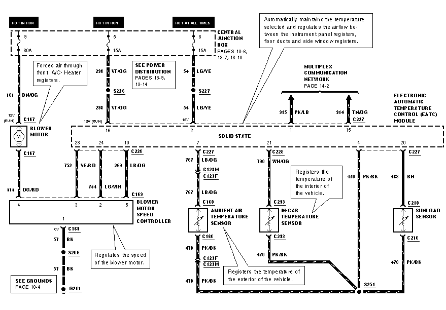
Blower Motor Speed Controller:

To be able to vary the volume of the air coming from the dashboard vents, the eatc controller has to be able to control the speed of the blower motor. This is accomplished by a relay, a darlington transistor, and some support components. The controller in question is mounted to the underhood evaporator housing which keeps the components cool since air going to the dashboard vents is constantly forced past it when the blower motor is turning. More information on the eatc speed controller is avaliable by clicking here.



Vehicles with the manual hvac controls use a conventional nichrome wire array to control the blower speed instead. While manufacturing costs of this unit are lower, it also only gives the vehicle operator 4 choices of speed while the eatc system in theory has an infinite number of blower speeds. Note that there are only 3 elements present in the picture below because "high speed" bypasses the resistor network all together. More pictures of this unit are avaliable here.



The eatc blower speed controller is physically larger than it's manual control counterpart which means that the evaporator housing could be modified to accept the eatc speed controller. But this task is easier said than done though as the engine blocks access to this area, as do the heater hoses & evaporative emissions components. But with a small dremel grinding wheel with a flexshaft attachment, it is possible to modify the housing with the engine in place by first removing the heater hoses and the evaporative emissions valve. The main points to watch for here are:

-that the transistor heatsink has adequate clearance from the plastic housing so that an adequate volume of air will flow by to cool the components and not cause them to fail prematurely or melt the evaporator housing

-the evaporator housing seals properly to the blower speed controller so that Below are some pictures and sketches of the blower speed controller opening in the eatc evaporator housing.



Note that the sketches below are not to scale. Even if you plan on modifying the your housing, it is highly recommended to purchase a spare eatc evaporator housing to make your own pencil or crayon templates from.



Ford had only minimal modification of the plastic molding between the eatc and manual versions of the evaporator housings. This is convient because the thick raised portion of the evaporator housing that the mounting screws go into is setup for both eatc and manual versions of the car. So if one drills the holes for the eatc speed controller fasteners in the factory correct locations, the evaporator housing will have the needed strength to hold the fasteners in place without cracking.



Below is the manual evaporator housing in my interceptor. Take note of the three protrusions around the mounting hole that are not present on the eatc variant of the housing. Also note that the resistor opening is a different shape and the mounting holes are in different locations.





And here's the result after using a small rotary grinding tool and drill:



No need to cover the locations where the original fastener went as the eatc speed controller is large enough to cover them with it's insulating foam. It's also large enough to cover the spot where the rivet on the old manual nichrome resistor went.



To test if the hole was the proper size, I placed the actual eatc speed controller in the hole and attempted to slide it in all directions. This told me if the controller heatsink had adequate clearance from the plastic evaporator housing casting.

The method of rubbing a pencil on top of a plain peice of paper to make a template of the eatc speed controller hole proved to be very accurate. When I layed the eatc template over the manual hole, the fastener holes were drilled in the correct locations and the speed controller sealed to the housing without any noticeable leaks. This was especially evident when I removed the instrument panel and heater plenum from the vehicle and was able to visually observe the back of the evaporator housing.



Wiring:

To obtain the needed connectors and wiring and other support components for this project, I located a similar model year wrecked donor vehicle that had been involved in a rear impact collision. I then removed the dashboard from the wrecked eatc equipped 98' crown vic LX, seperated the wiring from the dash, layed the dashboard shell on the front seats of the car and purchased the 14401 dash wiring harness and evaporator housing. I then proceeded to bench test the components by plugging the eatc control head into the junkyard dash harness, and connecting the other climate control system support components including: sensors, blend door actuator, blower speed controller, and blower motor. I next applied power by connecting the negative terminal of a sealed lead acid battery to the grounding ring terminals and the positive terminal to the appropriate wires on the ignition switch socket and the constant live feed wires on the connectors that would be located above the blower motor and the brake booster. The climate control system was behaving as it should, the eatc control head powered up and displayed the temperature, turning the blower speed control knob controlled the blower speed, and adjusting the desired temperature caused the blend door actuator to move. The vacuum control block inside the climate control head was recieving +12V on the red wire, and pushing the different vent buttons on the front of the control head provided the appropriate pulsed ground signals. And to top everything off, the system passed the built-in self test documented here.





Now that I knew the eatc control head and other support components functioned properly, I had to decide how to procede. I could install the entire 14401 dash harness out of the wrecked LX into my police interceptor or seperate the eatc wiring out from the donor harness and add the eatc portion to my car. Some points to consider here included:




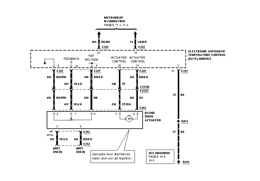
Anyways, I decided to remove the eatc wiring of the dash harness and install just that portion of the harness into my police interceptor. Below is a chart of the wiring connections and where I connected the wires to my dash harness:

Connector
Wire Color
Where
Function
Notes





Grey Connector C227
Twisted Pair ([Pink/Light Blue] & [Tan/Orange])
Junction at obd2 diagnostic port near gas pedal
Multiplex SCP Bus for coolant temp & vehicle speed data
Instead of ghd seperate cold engine lockout (celo) switch used on antiquated crown vics, 1995+ ones recieve coolant temp data from the pcm via the data bus
Grey Connector C227
Light Green/Yellow
At drivers fuseblock
Constant +12V
Inititally was using the cigar lighter to power this wire but later moved the wire to a circuit because it's bad if the heater stops working if you plug in a defective cellphone charger or other accessory
Grey Connector C227
Purple/Orange
At driver's fuseblock
Switched +12V
A switched ignition +12V wire is present at the old manual hvac controls. But I already had a switched +12V wire connected to the proper circuit on the fuseblock from another project.
Grey Connector C227
Light Blue/Red
At Radio or LCM
Variable Voltage Dimming Output of LCM

Grey Connector C227
Black
At old manual hvac control head wiring
Ground

Grey Connector C227
Dark Purple
At old manual hvac control head
A/C low side cycling switch
Do not confuse this wire with the other purple wire that's used for the blend door actuator
Black Connector C228
Orange/Black
At old manual hvac control head or at cigar lighter plug
PWM Dimming output of LCM






Grey Connector C227
Pink/Black
Construct New Harness
Common sensor ground for interior air temp & sunload & exterior ambient air temp

Grey Connector C227
Blue/Orange
Construct New Harness
Exterior Air Temperature Feed (Underhood in front of horns)

Grey Connector C227
Brown
Construct New Harness
Sunload Sensor (Far passenger dash near a-pillar)

Black Connector C228
White/Orange
Construct New Harness
Interior Air Temperature Sensor (Near hvac vontrols)






Grey Connector C227
Yellow/Light Green
Yellow Light Green
Blend door actuator harness
You can catch the blend door actuator harness at the connectors where the body and dash harnesses meet under the glovebox. Or you can just run 5 new wires from the blend door actuator pigtail to the eatc control head.
Grey Connector C227
Red/Light Green
Dark Blue
Blend door actuator harness

Black Connector C228
Bright Purple
(Below orange/black)
Purple/Orange
Blend door actuator harness
Do not confuse this wire with the other purple wire that's used for the a/c cycling switch.
Black Connector C228
Red/White
Red/White
Blend door actuator harness

Black Connector C228
Brown/Light Green
Gray
Blend door actuator harness






Black Connector C228
Light Green
To Blower Speed Controller
High speed relay
Applying +12V to this wire engages a relay inside the controller that provides a direct path to ground for the blower motor.
Black Connector C228
Yellow/Red
To Blower Speed Controller
Variable speed control signal
Do not apply +12V to this lead or you will damage the speed controller by burning traces off the circuit board. To test whether this portion of the controller works, apply +12V through an inline resistor somewhere in the 1k to 10k ohm range.
Black Connector C228
Light Blue/Orange
To Blower Speed Controller
Feedback signal
This output is connected through a 1k ohm resistor to the high current blower motor feed.





Black Connector C228
Red
Not Used
Digital dash english/metric switch
Installing a digital dash into my P71 would be trivial compared to adding eatc. But I prefer the feel of analog instrumentation at the moment.

Note that most recent ford vehicles share the same electrical connector housing for the eatc control head. But some such as older ford taurses have a very different pin assignment. Which means if you plug an eatc control head into the wrong vehicle, you risk permanetly damaging it. This is particulary troublesome as eatc control heads may be mislabelled at salvage yards and appear to be identical on the exterior.






Note: 98'-00' crown vic eatc control heads will not honor the requests for redundant steering wheel controls. If you think you may want to add steering wheel mounted controls for the fan speed & temperature later, get the 01'-02' revision of the eatc control head.




Note: It is assumed that the reader of this document is already familar with the operation principles of ford ccot (cycle clutch orifice tube) air conditioning systems. So the extent of coverage in this document of the underhood a/c pressure components is that if air is forced through the evaporator core and +12V is present at the purple feed wire on the low pressure cycling switch, then the air discharged inside the vehicle will be cooled and dehumidified.



Vacuum Distribution:

The vacuum harness part of this project was simple as the dash vacuum harness is seperated into two parts. The part that feeds the parking brake release and hvac system from the underhood vacuum distribution block is the same between vehicles with eatc and ones with manual controls. The part that is different easily disconnects from the other part of the harness under the back of the dashboard.

With eatc, the black vacuum hose is closed off to the outside enviroment when the engine is turned off. And all the vacuum actuators will rest at ambient air pressure which means that the outside recirc door will open and let the interior "breathe" when you park. With manual controls, an residual engine vacuum will still be applied to the doors and the interior won't be able to "breathe" if you leave your vehicle set on "max a/c".



Here's the two portions of the dash vacuum harness mated together. The big black rubber grommet is for where the harness passes through the firewall.



And here's the eatc portion that I need to swap into my manual a/c equipped car. If you somehow neglect to install the vacuum harness, all air flowing from the dashboard vents will come from the windshield defroster vents because the door actuators default to that position when no vacuum is applied to them.







And here's the two different vacuum connectors for the manual and eatc heads side by side. Note that they are a different shape and size, and also the vacuum hoses are layed out in a little different configuration.





Now that the wiring an other support components were installed, I installed the eatc control head and used it to control the blower speed and the vacuum controlled doors inside the heater box that control which dashboard vents air is discharged from. Until the old manual blend door actuator was  replaced with it's eatc counterpart, the temperature of the air discharged from the vents was still controlled by the old rotary knob from the manual control head though. For testing purposes during this stage, I connected the new eatc blend door actuator and layed it on my center console. At first it was interesting to watch the actuator linkage move as the eatc system was trying to adjust the temperature, but after a couple weeks it became an annoyance and I became determined to finally finish the project by removing the dashboard and installing the actuator onto the heater plenum assembly.

Blend Door Actuator:

To regulate the interior vent discharge temperature, a moveable obstruction called a blend door is located inside the vent tunnels underneath the dashboard. When air is desired to be cooled, it is directed through the air conditioner evaporator core. When air is to be heated, it is directed through the heater core. To move the blend door, an electric actuator is used.






In the pictures below, the white actuator on the left labelled "MAN" is for vehicles with manual air conditioning. The black actuator on the right is for crown vics with eatc.



And here's the back of the actuators showing the linkage that connects to the actual blend door.



Here's the actuators at the other limit of their travel range.



And here's a picture of the actuator with the top cover removed. Visible are the drive gears, feedback resistor and motor.



Crown vics with manual and eatc both use the same heater plenum assembly, so an eatc actuator will bolt onto a plenum for a vehicle originally equipped with manual hvac controls. The problem is that to change the blend door actuator in a crown vic, the instrument panel (or in different terminology "dashboard") must first be removed from the vehicle which will take a few hours even for a skilled mechanic that has done the job before. And for the novice backyard mechanic, the job could well take a weekend or two.

For obvious reasons, do not install a used "pre-owned" blend door actuator. If you cannot afford to purchase a new $50 actuator from ford, live with your old manual controls until your finances improve. Blend door actuators are wear items and they are a big job to replace should they fail.



Since you're probably not going to be in a hurry to pull the dashboard again, consider replacing other wear items under the dash too:
An excerpt from the factory service manual documenting dashboard removal is avaliable by clicking here.

Notes about dash removal:

Now it's time to put the dashboard back in the car and keep your fingers crossed that everything works right. In my case, the engine started up when the key was turned and I had gotten rid of an intermittent squeaking sound coming from the passenger's side of the dash. But I did have some odd electrical problems to contend with. The autolamp system sometimes wouldn't shut off the headlights and the abs indicator flickered on and off when driving over bumpy roads. Turns out the abs indicator feed to the instrument cluster shorted to the parking light feed which would intermittently give the abs bulb a ground path through the parking light filaments when the parking lights weren't on.

My first thought with the autolamp system was that I had somehow broken the wiring for the delayed exit rheostat. But since the headlamps would stay on for over 10 minutes, this definetly was not the case. I also noticed that the warning tone when the headlamps were on and the drivers door opened was disabled and the seatbelt buzzer was behaving oddly. Then noticed that my aftermarket car alarm system was intermittently sensing the ignition as "on" when it really wasn't. Could also watch the voltmeter on the instrument cluster jump up & the fuel guage move when the parking lights flashed on/off for car alarm event confirmations. Turns out that I had bad ground for the instrument cluster parking light bulbs, so when the parking lights were engaged it created a feedback loop telling the lighting computer that the ignition key was in the on position.

Anyways, after pulling the instrument cluster and running a couple new ground wires, and then disabling the old wiring the dash for the parking light & abs circuits and installing some new wiring, everything is working as it should. Fortunatetly, I did not damage the abs controller circuitry when the pulsed ground abs indicator bulb output was shorted to the +12V parking light feed. So have a copy of the evtm (electrical and vacuum troubleshooting manual) handy for your car before you pull the dash.



Using your new hvac system:


Well the first thing to do is to take a look at the owners manual section on operating the ford "climate control" system. Then run the self test documented here. If everythings checks out, make sure that air gets discharged from the proper vents when you press the buttons on the front of the control head. Now check that you can vary the speed by turning the control knob, and that adjusting the temperature setting varies the vent discharge temperature.

Return to Main Page