Background:

Back in the summer of 2002, I was at the salvage yard looking for some Ford Crown Victoria related parts and came across a newly arrived 2001 Mercury Grand Marquis that was equipped with power adjustable brake and accelerator pedals. The vehicle had been hit hard damaging most every body panel in one way or another, but the portion of the firewall that housed the accelerator and brake pedals was relatively untouched by the collision. I had seen multiple advertisements and brochures from Ford stating the convience and comfort of having adjustable pedals, so I decided to acquire the parts to add the feature to my 1998 Ford Crown Victoria Police Interceptor.



Power adjustable pedal assemblies are manufactured for Ford by KSR International (www.ksrint.com) and TeleFlex (http://www.teleflex.com). Crown vics use pedals from KSR, as do the ford expedition and lincoln navigator. Other ford vehicles such as the taurus, freestar, f-series truck and explorer use pedals from teleflex.

Crown victorias first got the option of having power adjustable gas and brake pedals in the 2001 model year but only on LX and Police models. In 2002 all trim levels of crown victorias were avaliable with power adjustable pedals as an option.

Related Articles:

Detroit News

Associated Press
Strategic Safety
Associated Press

Determing required parts:

First question is what changed between 1998 and 2001.

The steering column brackets towards the bottom of the column are identical when the 1998 and 2001 columns when the two columns are placed side by side.
The power brake booster is different.
The power brake booster vacuum check valve is the same
The accelerator cable is the same

The trim panels that on 1998 models hold the defroster switch and surround the heater controls were redesigned for the 2001 model year. On 2001 and later vehicles, the defroster switch is towards the right of the steering column very close to the climate controls, the traction control and power pedal adjustment switches are towards the left of the steering column where the defroster switch used to be. If one wants to use the original ford power pedal adjustment switch, the trim panels from the 2001+ donor will need to be acquired.

Are two distinct revisions of the brake booster in a given model year: ABS equipped cars and Non-ABS equipped cars. Luckily the both the 2001 donor marquis and my 1998 police interceptor were abs equipped.

Make sure to physically measure both the Brake Booster to Master Cylinder Push Rod length on the donor and on your vehicle to make sure they are consistent with each other. A rod that is too short will cause problems, so will one that is too long:

"The power brake booster (2005) has an adjustable push rod (output rod) which is used to compensate for dimensional variations in an assembled power brake booster . The push rod length is adjusted after it has been assembled in production. A properly adjusted push rod that remains within the power brake booster after it was assembled in production should never require a service adjustment.

A power brake booster that is suspected of having an improper push rod length will indicate either of the following:

A push rod which is too long will prevent the brake master cylinder piston from completely releasing hydraulic pressure causing brakes to drag.
A push rod which is too short will increase brake pedal travel causing a clunking or groaning noise from the power brake booster."


Tools Required:

1/2" drive ratchet
1/2" drive ratchet extension bars
1/2" drive metric sockets
1/2" drive swivel adapter

Parts Required From Donor Vehicle:

brake pedal assembly
gas pedal assembly
brake booster (connecting rod is different on vehicle with adjustable pedals than on vehicle without adjustable pedals)
speed control deac switch (actuating rod is a different length on vehicle with adjustable pedals than on vehicle without adjustable pedals)
electrical connector for motor and short lead of wire (required)
control switch and electrical connector (optional)
dashboard trim panels (optional)

Ford Part Numbers:

Part Number
Callout
From
To
Description
Suggested Retail
1W7Z-2C335-AA
2C335
2001
2003
Traction Control On/Off Switch
$23.62
1W7Z-9G604-AA
9G604
2001
2003
Adjustable Pedal Control Switch
$12.32
XF1Z-9F924-AA
9F924
1998
2000
Speed Control Deac Switch
$5.29
1F1Z-9F924-AA
9F924
2001
2003
Speed Control Deac Switch
$23.91
F0AZ-13480-A
13480
1990
2000
Stoplight Switch Assembly
$14.73
YF1Z-13480-AA
13480
2001
2003
Stoplight Switch Assembly
$17.47
F0AZ-2B450-A
2B450
1990
2003
Brake Pedal Support Spacer (Plastic spacer in between the brake pedal assembly housing and the firewall. Power brake booster studs pass through this part.)
$6.57
C5DZ-2B129-B
2B129
1980
2003
Brake Master Cylinder Pushrod Spacer (Plastic washer that goes over the rod on the brake pedal that the power brake booster connects to)
$0.50
F1VY-9725-A
9725
1992
2000
Accelerator Pedal Fixed
$66.06
1W1Z-9725-AA
9725
2000
2002
Accelerator Pedal Adjustable without Memory
$99.11
3W7Z-9725-BA
9725
2002

Accelerator Pedal Adjustable with Memory
$169.57
3W7Z-9725-AA
9725
2003

Accelerator Pedal Adjustable
$121.13
1W1Z-2455-BB
2455
2001
2002
Brake Pedal Assembly (Motor and cable only avaliable in accelerator pedal assembly)
$106.95
3W1Z-2455-BA
2455
2003
2003
Brake Pedal Assembly (Motor and cable only avaliable in accelerator pedal assembly)
$106.95
1W1Z-2005-AA
2005
2001
2002
Power Brake Booster Less Electronic Stability Program (IVD) (use with #1W13-2B195-AC/BC or #1W73-2B195-CC)
$170.60
3W1Z-2005-AA
2005
2003
2003
Power Brake Booster Less Electronic Stability Program (IVD)
$170.60

Note that on mid-2001+ models, the brake booster is the same regardless of whether the vehicle has power adjustable pedals or not. So all you'd need for this project would be the brake and accelerator pedal assemblies along with the switch & trim panel. The dash electrical harness will likely already have the connector for the switch and motor on it.

Pictures of the Parts:

Power Brake Booster



On the left is the power brake booster from the 2001 marquis, on the right is the booster from my 1998 police interceptor. The studs that retain the booster to the firewall are in the same location on both boosters, the master cylinder studs are also in the same locations.



Above is the booster from the 98', below is the booster from the 01'. Notice the appearance differences in the brake pedal connecting rod. Pictures are not to scale, but the 01' brake pedal connecting rod is shorter than the 98' rod is.

If the 98' brake booster was left in place and the 01' brake booster was not installed when the 01' power pedal assemblies were put in the car, the brake pedal would touch the transmission gear selector cable and sit too high off the floor for most people's liking.



Brake Booster Firewall Spacer:





Above are pictures of the front and back of the 2001 brake booster spacer. The part number imprinted on the spacer begins "F0AC" which equates to a 1990 part for full size fords.

Pedal Assemblies:



On the left is the adjustable pedal assembly, on the right is the stationary pedal assembly. The big round hole on the brake pedal bracket is where the booster rod passes through.



Notice the shape difference between the two gas pedals. The stationary gas pedal is flat, the adjustable gas pedal has a sharp curve to it.





Above are pictured the speed control deac switches from the stationary pedal assembly and the one from the adjustable pedal assembly. The switch with the longer actuating rod is from the adjustable pedals.

Cruise control deac switch serves as a backup so that the cruise control will always disengage when the brake pedal is pressed even if the brake light switch has failed.

Removal of Pedal Assemblies:


The gas pedal is retained to the car by two studs welded to the firewall. After removing the two nuts from the studs and disengaging the accelerator cable from the pedal, the pedal assembly slid off the studs.





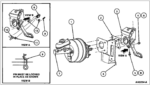
Item
Description
1
Power Brake Booster
2
Brake Pedal Support Mounting Spacer
3
Pedal Support Bracket
4
Nut (4 Req'd)
5
Bolt
6
Dash Panel
7
Brake Master Cylinder
8
Stoplight Switch
9
Retainer Clip
10
Push Rod Assembly (Part of Brake Booster)
11
Brake Master Cylinder Push Rod Bushing
12
Brake Master Cylinder Push Rod Spacer (2 Req'd)
A
Tighten to 21-29Nm (16-21 Lb-Ft)
B
Tighten to 17-27Nm (13-20 Lb-Ft)

The brake pedal assembly is held to the firewall using 4 nuts which attach to the power brake booster studs and one bolt which attaches to the bottom of the metal dashboard support bracket. After all fasteners were removed, I proceded to remove the clip from the brake pedal shaft that held the power brake booster connecting rod to the brake pedal. Booster rod and brake light switch was then slid off the pedal arm. Save the washers, bushings and retaining clip from the donor vehicle in case you need a spare.

The gas and brake pedal are powered by just one motor with a flexible metal rod encased in plastic connecting the two. Metal rod runs very close to the steering shaft which makes removing both pedal assemblies as one unit difficult. Since the steering box was already removed from the donor vehicle, I just loosened the bolt on the u-joint which secures the shaft to the steering column and then slid the shaft out from under the hood. Now had plenty of clearance to pull both the brake and accelerator pedal assemblies out of the car without seperating the connecting cable. If removing the steering shaft is undesirable and one instead wants to seperate the brake from the accelerator pedal assembly, it is easiest to seperate the end that attaches to the brake pedal adjuster.

Only thing now holding the pedals in the car is the wiring. Cut the two wires (red and white) that run to the adjusting motor on the accelerator pedal making sure to leave yourself a sufficent quantity of wire after the electrical connector so that you can splice power leads onto them later.

Removal of Power Brake Booster:


The nuts are already off the studs that hold the brake booster to the firewall, the booster connecting rod is no longer connected to the brake pedal arm either. The only thing holding the brake booster in the car now are the two nuts which hold the booster to the master cylinder. In the wrecked donor car, it is acceptable to remove the nuts from the booster and slide the master cylinder off the booster letting the booster hang in mid-air suspended only by the brake lines. But if you are removing the booster in your own car, make sure to support the master cylinder ahead of time so that the brake lines are not damaged.


Installation:


Lay out your tools and the required parts on your work surface.

Now support the master cylinder so that it will not be hanging solely by the brake lines when the brake booster is removed. The hood has cross support beams that wire could be run across to support the master cylinder, are other methods too (be creative). If using the hood to support the master cylinder, make sure that your hood struts are in good shape beforehand. It is undesirable to kink a brake line because the hood unexpectedly closed in the middle of the project.

Unbolt the 2 nuts that secure the stationary gas pedal bracket to the firewall and disengage the accelerator linkage. Now slide the power adjustable gas pedal assembly into place, tighten the nuts, and attach the accelerator linkage.

Unbolt the 4 nuts which hold the brake pedal assembly to the firewall and the 1 bolt which secures it the underdash support bracket. Remove the clip from the brake pedal and slide the booster rod and brake light switch off the brake pedal arm. Unclip the electrical connector from the cruise deac switch and remove the entire brake pedal assembly from under the dash.

Remove the 2 nuts which hold the brake master cylinder to the brake booster. Now remove the power brake booster from the car being careful not to damage the brake lines.



Slide the power adjustable pedal brake booster into the appropriate cutouts on the firewall. Then place the master cylinder back onto the brake booster and tighten the nuts.

Place the adjustable brake pedal assembly under the dash and line up the holes on the brake booster with the holes on the brake pedal bracket. Now slide the brake booster rod, bushings and brake light switch onto the brake pedal arm stud secure in place with the factory clip. Loosely tighten the 4 nuts which hold the brake pedal assembly to firewall and install the 1 bolt that secures the brake pedal to the underdash support bracket. Tighten all fasteners to the appropriate torque specifications. Clip the speed control deac electrical connector onto the new switch.

Adjustment cable that runs from the motor on the gas pedal to the brake pedal assembly needs to be connected, it just snaps into place. Make sure to "index" the two parts so that they have the proper travel range.

"Adjustable Pedal Indexing —Brake
CAUTION: The adjustable pedal system must be indexed whenever the brake pedal assembly or the accelerator pedal assembly is serviced. Operate the switch until the accelerator pedal aligns with the base position index mark on the accelerator pedal assembly.

Connect the drive cable to the brake pedal assembly.

Check that the brake and accelerator pedals can adjust at least 50 mm (2.0 in) from the base position."

Remove whatever temporary apparatus was used to suspend the master cylinder in mid air.

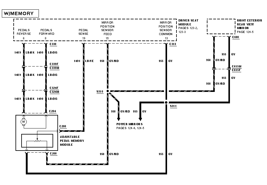
Wiring:

In 2001, the trim panel to the left of the steering column that housed rear window defroster switch and the trim panel to the right of the steering column that surrounds the climate controls were redesigned. 2001 was also the first year that power adjustable pedals were avaliable in the crown vic. If a 2001+ donor vehicle can be located with the same color interior as your current vehicle, it will allow use of the factory power pedal control switches. If 2001+ trim panels of suitable color cannot be located, one can cut extra holes in the currently installed trim panels and install a couple of pushbutton switches and relays to control the electric pedal adjuster.

Crown Vics have only two wires which connect to the power pedal adjustment mechanism. Applying ground to one wire and +12 Volts to the other will cause the motor to run. Swapping which wires have the positive and negative connected to them (reversing polarity) will change the travel direction of the motor.



Some towncars are equipped with a memory mechanism for the power seats, mirrors and pedal position. Is a convienent feature on a vehicle with multiple drivers, just tap a button and the seat, mirror and pedals will all automatically adjust to their preset positions. If using the memory equipped pedal assemblies from a towncar in a vic, leave the three wires that run to the pedal position sensor disconnected and just use the two that connect to the actual motor.





 

Testing:

Some major changes have been made to the vehicle.Without properly functioning gas and brake pedals, a vehicle is undriveable. So take another quick check to make sure that all fasteners are properly installed and tightened. Also make sure that the brake fluid level sensor connector is installed on the master cylinder reservoir.

The new adjustable brake and gas pedal assemblies have a different feel to them than the old stationary assemblies do. Sit in the drivers seat and press the new pedals a few times to get a feel for them.

Now select a time of day for the initial test drive when traffic is not heavy but visibilty is good. Before taking the testdrive, have someone stand behind the car and make sure that the brake lights illuminate when the brake pedal is depressed.

While on the testdrive, raise the vehicles speed to approximatetly 35MPH and check to see if the cruise control system will engage. If the system functioned properly before the power pedal retrofit, but no longer functions, suspect alignment problems with the cruise deac switch.